UNDERPEENING SUPER PRESSURE PLATE METHOD
アンダーピーニングスーパー耐圧盤工法
アンダーピーニングスーパー耐圧盤工法とは
一般的な耐圧盤工法では、曳家(ひきや)工事の要領で耐圧をきちんと取らず複数台のジャッキの勢いでお家を持ち上げるに対して、
当社のスーパー耐圧盤工法では、一箇所一箇所丁寧に新築時の重機を使った杭工事と同等の圧力がかかるまで、
大型コンクリート平板を重ねて圧入し、基礎の下に大きなコンクリートの柱を形成してから複数台電動油圧でジャッキアップいたします。
地盤ロック工法との併用により液状化対策と地盤改良を同時施工!!
アンダーピーニングスーパー耐圧盤工法の流れ

施工の流れ①
- 壁やお庭がよごれないよう養生を行います。
- お家の重さを十分に支えられる分厚い、大きな鋼製耐圧盤(地盤データにより400角~600角)を敷設するため、配管などに注意しながら基礎の下の地面を掘削します。
15センチ角程の小さいコンクリートブロックを圧入して杭と称する工法がありますが、必要圧力に耐えられず地中で崩壊します。また、積み木の様に重ねただけのブロックがまっすぐ支持層(千葉市液状化地域では約20m)に到達することはありません。

施工の流れ②
- 鋼製大型耐圧盤の上に、 耐圧用コンクリート平板と耐圧用鉄板を敷設し 、一箇所ずつ丁寧に圧力を掛けて地中に沈めていきます。
当社「アンダーピーニング スーパー耐圧盤工法」では持ち上げ時に必要な圧力の最低5倍の圧力(10t~15t)が掛かるまで、一箇所ずつ丁寧に、大型耐圧用コンクリート平板を圧入していきます。
曳家工事の要領で、耐圧を取らずに複数台同調ジャッキの勢いだけで持ち上げを行うと再沈下します。

施工の流れ③
- 電動油圧ポンプの圧力計、傾きの中間修正数値、お家の様子等を常に確認しながら、複数台電動油圧ジャッキの圧力を均等に分散させて、慎重にお家の傾きをミリ単位で新築基準以上の水平状態まで傾斜調整いたします。
- 傾斜調整完了後は、お客様にご確認いただきながら屋内計測を行います。

施工の流れ④
- 支持鋼材を設置し、耐圧用コンクリート平板同士の繋ぎ目や、お家が持ち上がった事によって生じた隙間をグラウト材充填により、一体化完全固定し工事完了となります。
- 当社では、お家が持ち上がる事によって切れてしまう上下水配管仮接続復旧、新築以上に水平になった事によって生じる建具不具合調整を、出来る限りサービスで行っております。
アンダーピーニングスーパー耐圧盤工法の特徴
- 液状化被害地域でも、地盤ロック工法による地盤改良同時工事によって、安定した地盤を形成し10年保証に対応
- 鋼管杭工法と比較して、工期が短く、地盤改良同時工事でも工事費用を随分と抑えられる
- 布基礎、ベタ基礎、杭基礎、施工可能
アンダーピーニングスーパー耐圧盤工法のギャラリー

掘削・耐圧盤設置

掘削・耐圧盤設置

耐圧盤圧入

耐圧盤圧入

ジャッキアップ・測量

ジャッキアップ・測量

配管修繕・グラウト

配管修繕・グラウト
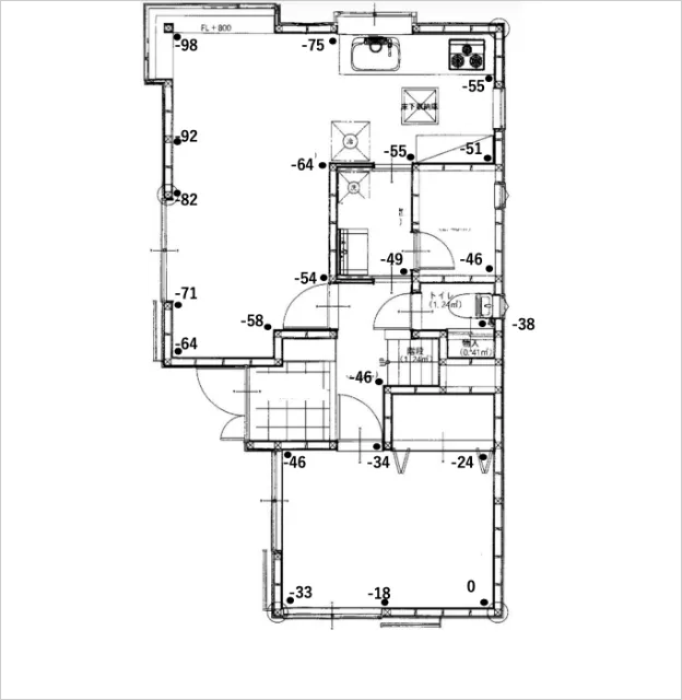
アンダーピーニングスーパー耐圧盤工法の施工事例

アンダーピーニングスーパー耐圧盤打設箇所

地盤ロック注入による地盤改良範囲
数字(黒):工事前傾き
数字(赤):工事後レベル

Before

After

